The Holton | A luxury tower Apartments
Bahria Phase 4, Rawalpindi PakistanApartments
A testament to Blue Arc’s progressive design, a reimagined community living comprised of architectural excellence, urban lifestyle, and endless opportunities. The Holton was constructed to meet the highest standards of living for the people who value the finer things in life.
- One Bed Apartments
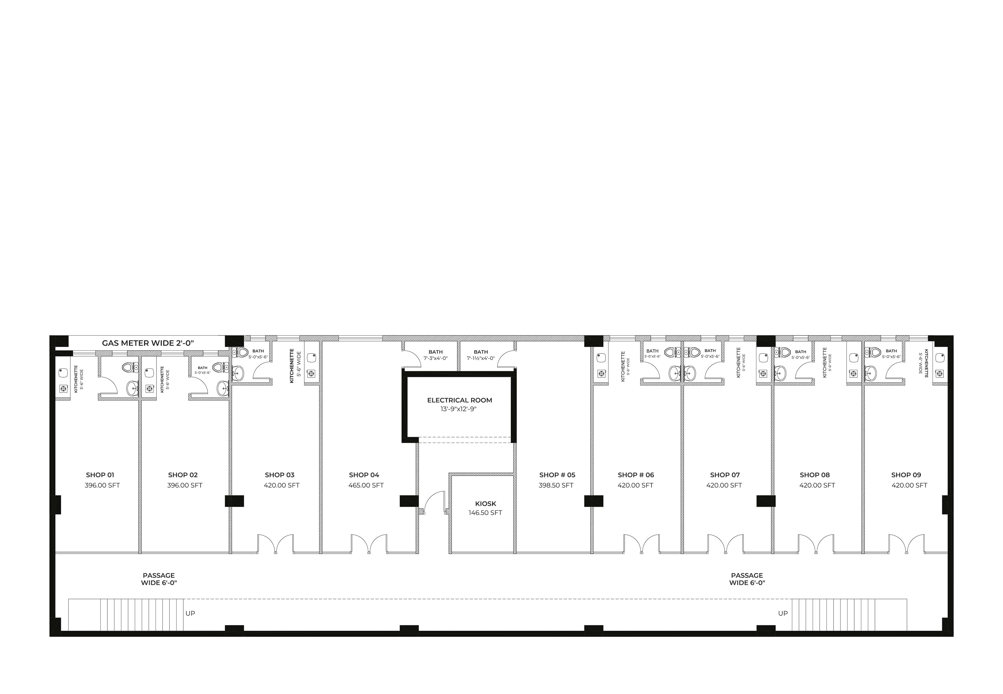
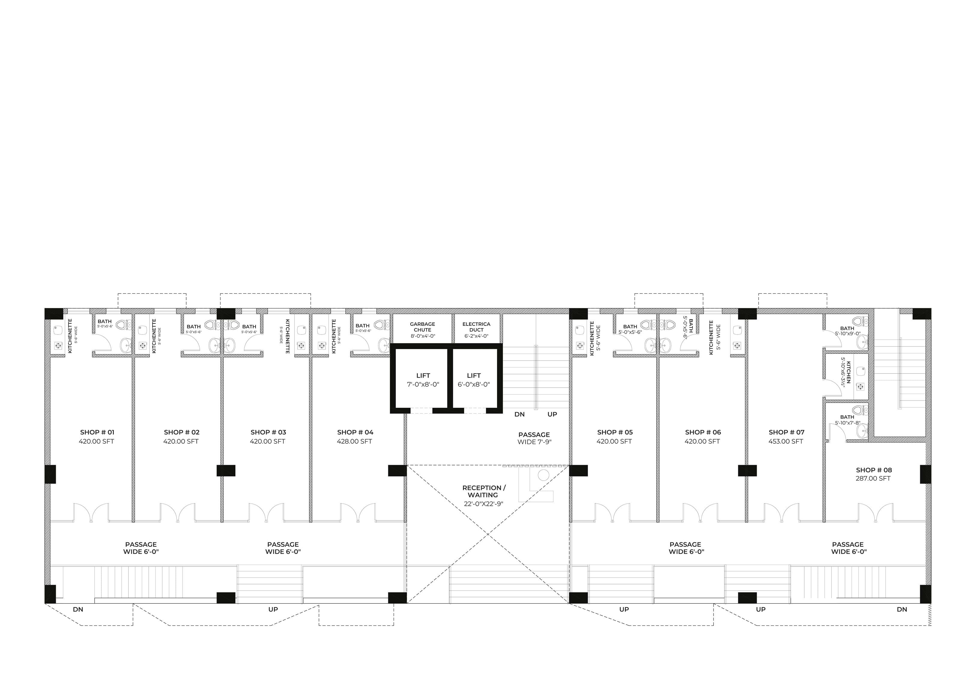
- Commercial Shops
About Project
The Holton isn't just in Islamabad, it's in the heart of the action within Bahria Paradise, Phase IV.
Think wide boulevards, upscale shopping, and a vibrant community. Plus, you'll have easy road access to major highways for those weekend getaways to the Margalla Hills. It's your launchpad to everything Islamabad has to offer.
Step outside The Holton and you're spoiled for choice. Need a caffeine fix? Coffee shops abound. Retail therapy calling? The designer ground floor is full of those.
Feeling famished? Take your pick from world-class restaurants. Plus, The Holton is close to the Civic Centre, all the Bahria Towns, DHA 2, and the GT Road. Convenience meets excitement!
Find Your Perfect Fit
The Holton: Live Life Grand
Walk right in and live the dream. Our apartments are decked out by design superstars, so you can skip the unpacking and start enjoying your stylish space.
Panoramic Terrace Views
Unwind and take in the breathtaking vistas of Islamabad from your private terrace. Think morning coffee with a million-dollar view, or stargazing in style.
Tech-Savvy Elevators
Zip up and down the building with our state-of-the-art elevators. No more waiting – just seamless, speedy commutes.
Elevated Reception Area
Make a grand entrance every time you walk through our stunning double-height reception area. It's an impressive welcome for you and your guests.
Smart Automation at Your Fingertips
Control your apartment with a tap or a voice command. Lights, temperature, security – it's all at your fingertips for ultimate convenience.
Modern Living, Defined
Modern Architecture: Sleek lines and contemporary design define The Holton. It's a statement building that reflects your modern lifestyle.
Always Safe & Secure
Rest easy with our top-notch fire-fighting system and comprehensive security system.
Spacious Comfort
Spread out and enjoy ample living space in your apartment. No more feeling cramped – it's all about comfort and ease.
Imported Touches
Experience the difference with high-quality, imported fixtures and features throughout your apartment. It's the finer details that make a difference.
Project video
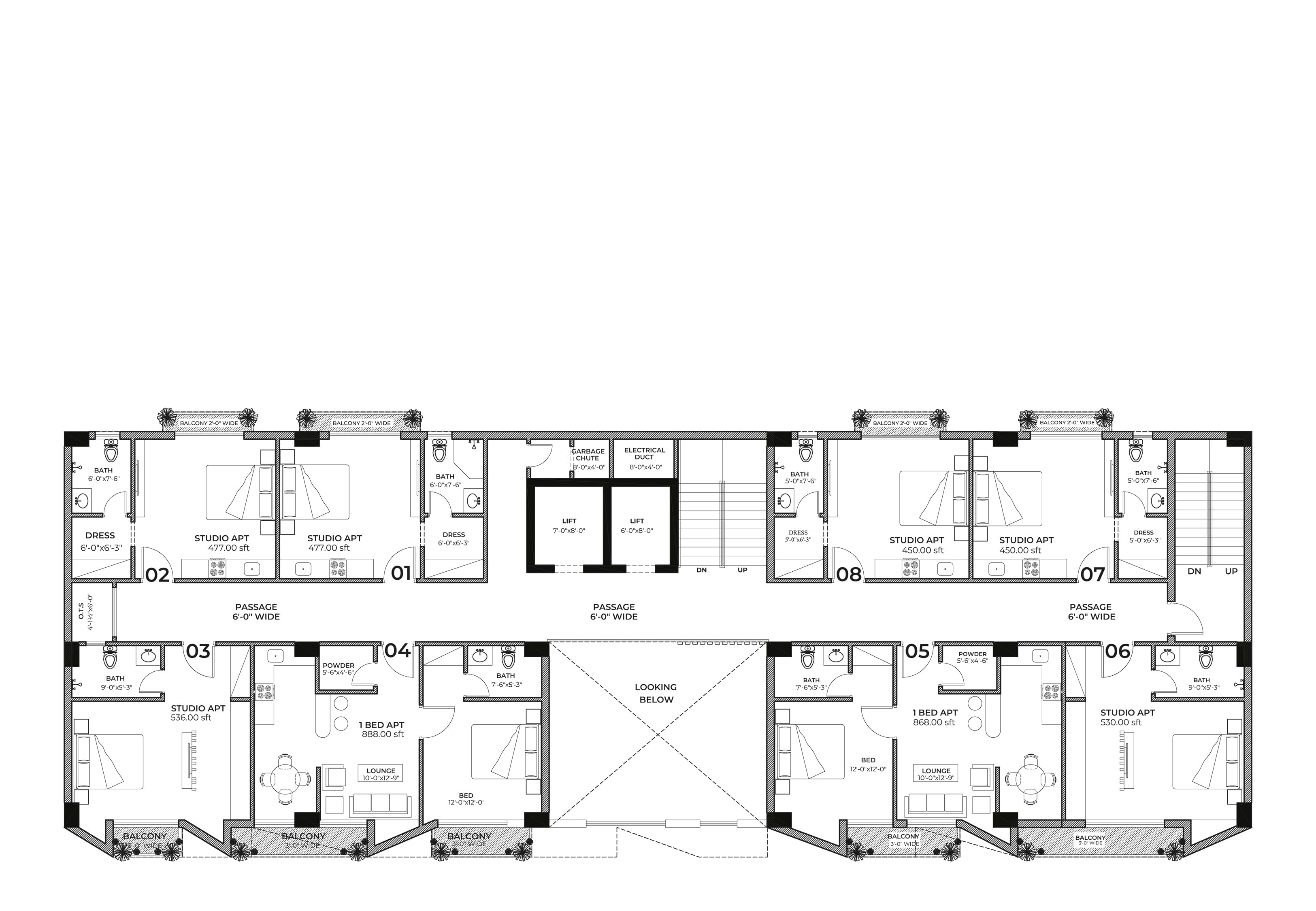
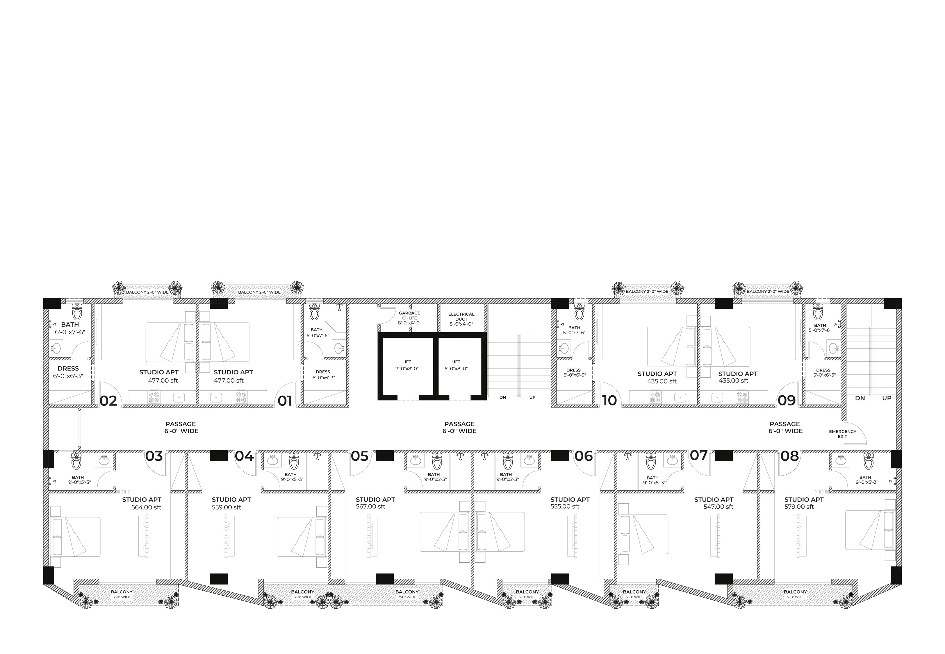
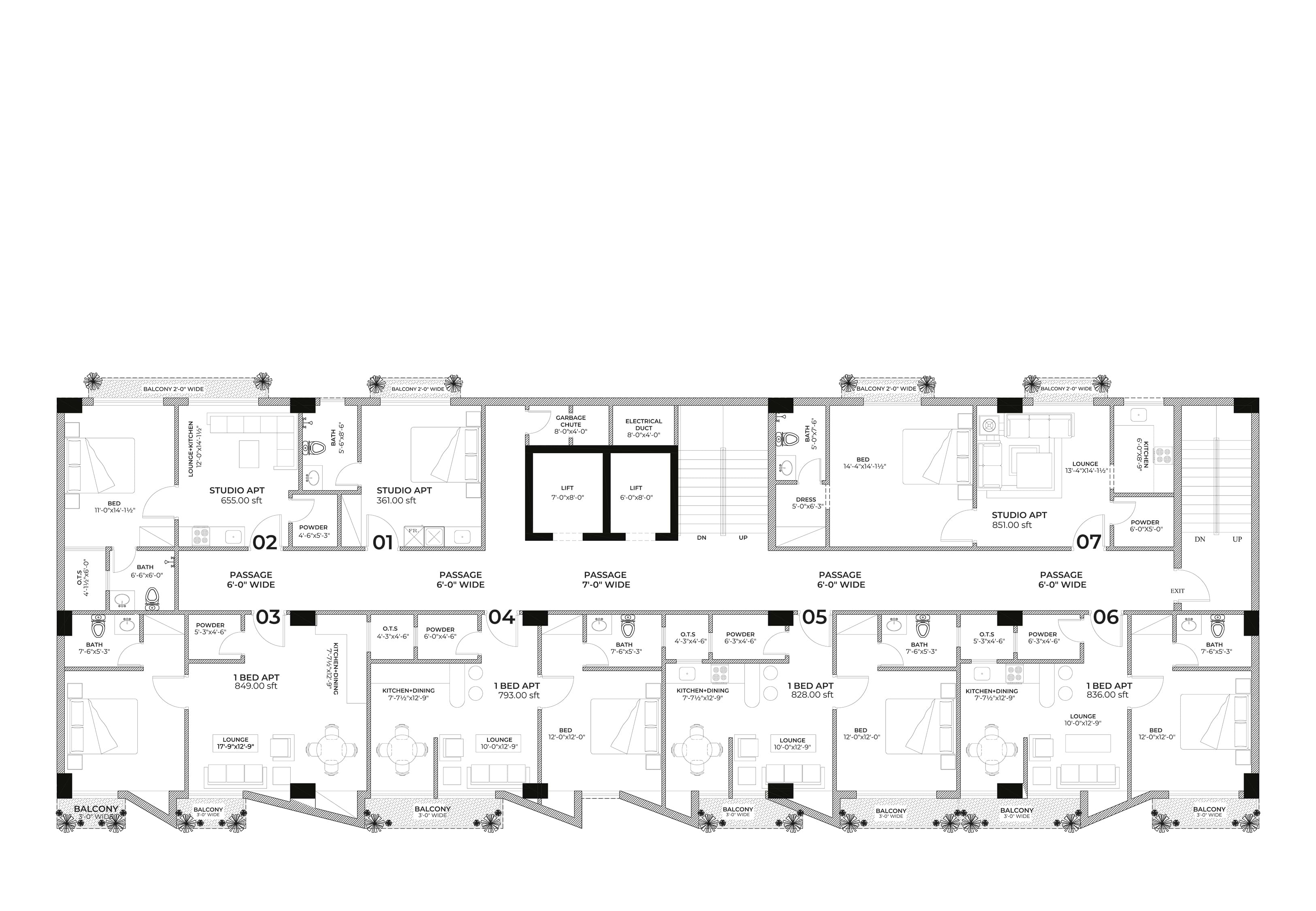
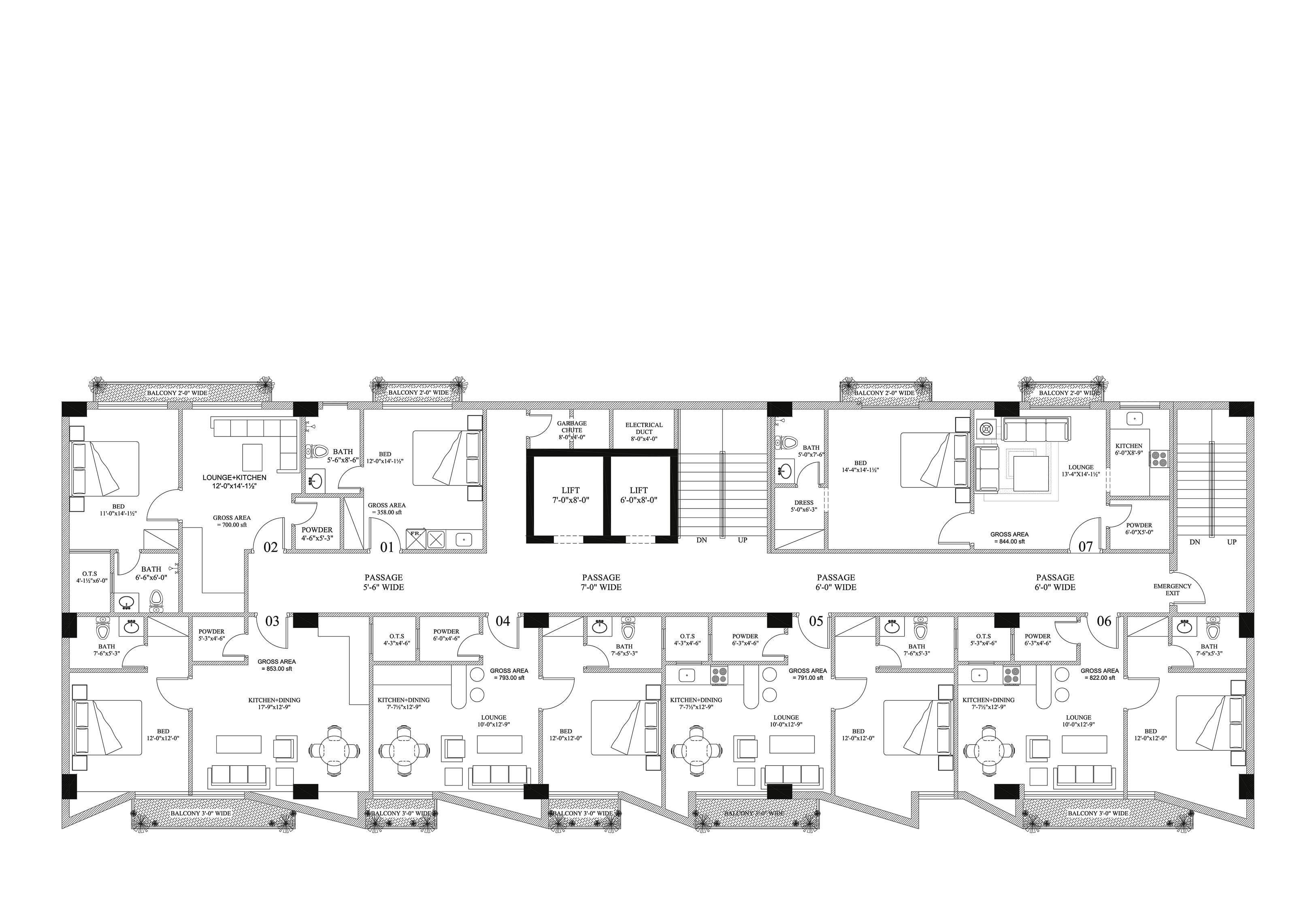
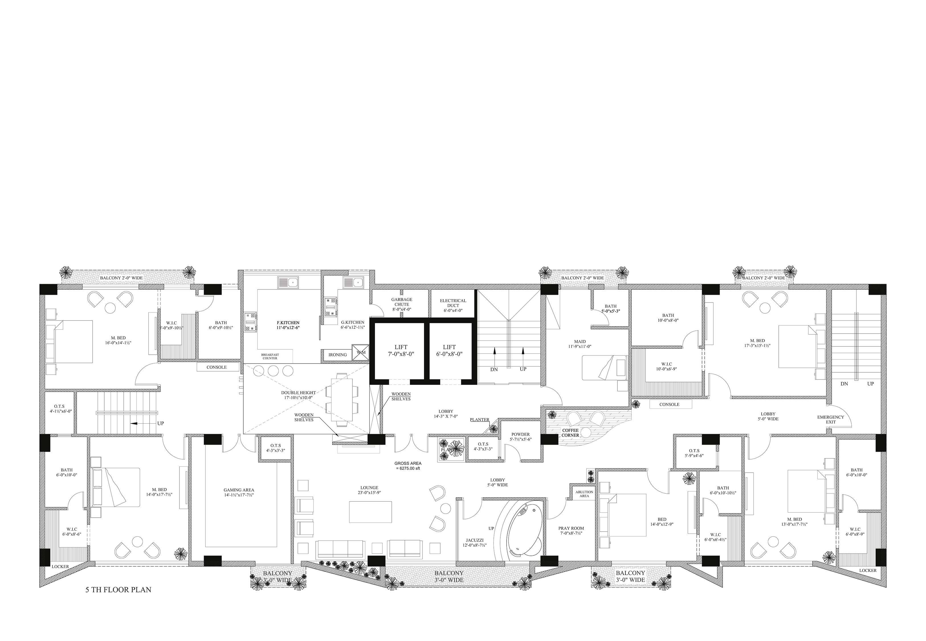
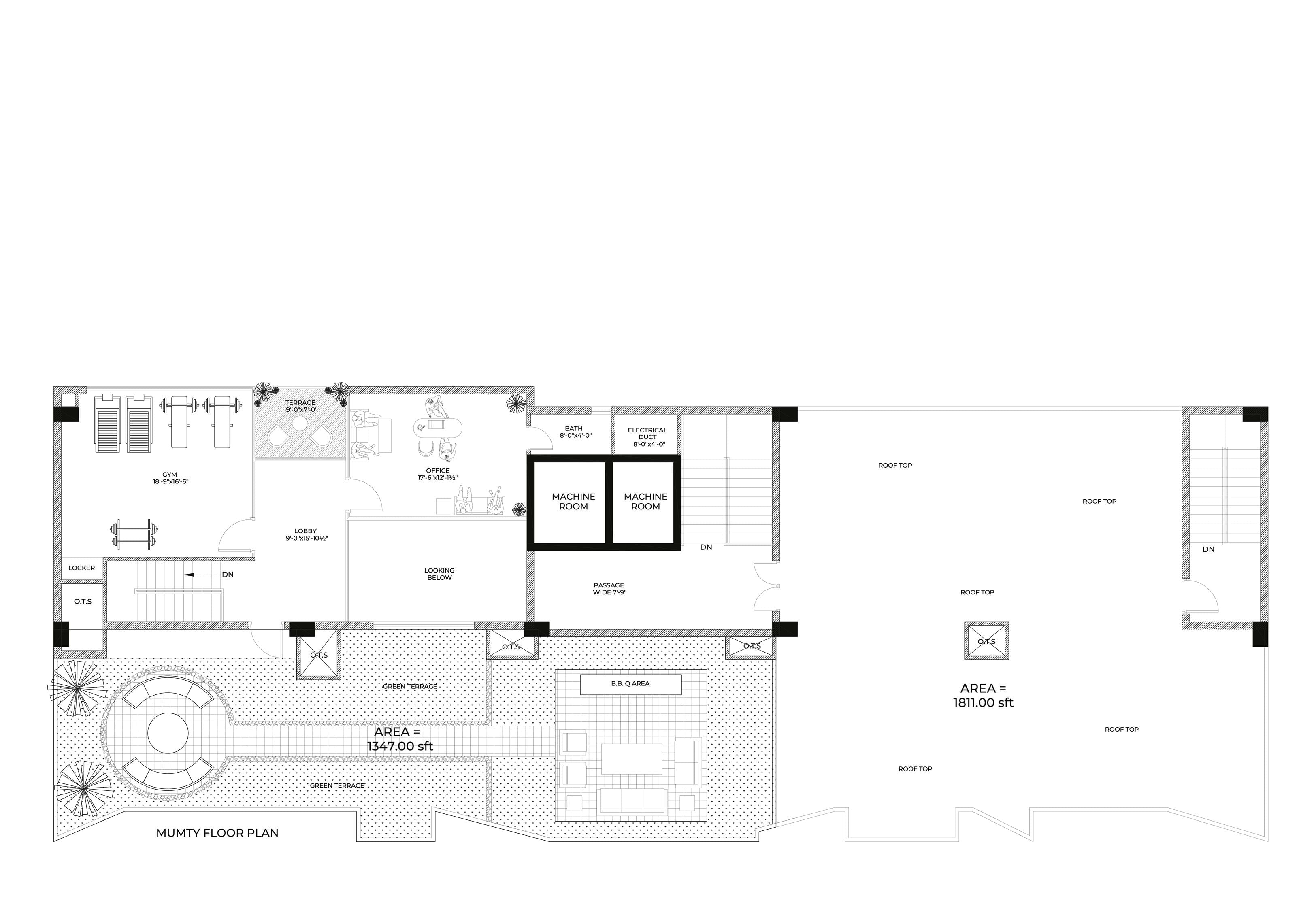
Floor Plan
Location
FAQ's
The Holton is situated in the heart of Bahria Paradise, Phase IV, Islamabad. This prime location offers easy access to major highways, trendy cafes, upscale shopping, and a backdoor to luxury.
It's your launchpad to everything Islamabad has to offer!
We cater to diverse lifestyles. Choose from:
- Studio Apartments: Perfectly designed for the minimalist or the on-the-go professional.
- One-Bedroom Apartments: Ideal for individuals or couples seeking privacy and space.
Absolutely!
The Holton boasts designer-furnished apartments. Imagine walking into a space curated by interior design experts, complete with stylish furniture and trendy vibes. It's move-in-ready luxury living at its finest.
We've got you covered! From panoramic terrace views and tech-savvy elevators to a double-height reception area and smart automation in your apartment, The Holton prioritizes convenience and comfort. Plus, don’t forget the top-notch security Holton offers you… never worry about a locked door at night ever again!
Absolutely! The Holton features a well-organized parking system, ensuring you find a spot with ease. No more circling the block after a long day!
The Holton offers a unique opportunity to own a premium retail space. Imagine capturing the attention of a built-in customer base and showcasing your brand in a beautifully designed setting.
Yes! The Holton embraces sustainable practices and features green spaces, aligning with the dynamic Islamabad real estate market.
We'd love to chat! Browse our website or contact us directly to discuss your dream apartment at The Holton.












